About
The Company
Our Team
Our Construction
Product Standards
Quality Brands
Homes
All Homes
Single Section
Multi Section
Decor
Appliances
Cabinets
Ceramic Backsplash
Ceramic Showers
Countertops
Floor Coverings
Interior Paint
Lighting
Roofing Options
Shutters
Siding
Trim & Shiplap
Vent Hoods
Options & Upgrades
Cabinet Hardware
Doors
Interior
Sinks
Clayton Built
Contact
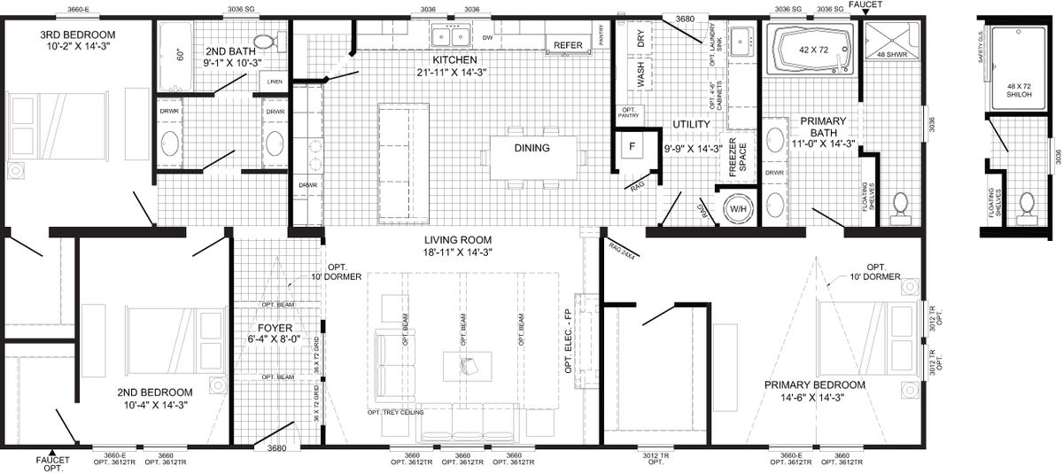
THE REED
Floor Plan
Photos
Virtual Tour
THE REED - 73ADM32643AH
1920 sq. ft
|
3
Beds
|
2
Baths
Download Brochure
Floor Plan
Photo Gallery
Virtual Tour
*The home series, floor plans, photos, renderings, specifications, features, materials and availability shown will vary by retailer and state, and are subject to change without notice.
VIEW SIMILAR HOMES
THE
MILL HOUSE
THE
LIZA JANE
THE
ANNA FAE